- /
- Продукция/
- Комплектные трансформаторные подстанции /
- Комплектные трансформаторные подстанции наружной установки КТПН(Т)(П)
Продукция
Комплектные трансформаторные подстанции наружной установки киоскового типа (КТПН) выполняются согласно ТУ У 31.2 -37370427-001:2012 и представляют собой однотрансформаторные подстанции наружной установки и служат для приема электрической энергии трехфазного переменного тока частоты 50 Гц напряжением 6 или 10 кВ, транзита её (подстанции проходного типа), преобразования ее в электроэнергию напряжением 0,4 кВ и снабжения ею потребителей в районах с умеренным климатом (от - 45 С до + 40 С).
Высоковольтный ввод в подстанцию 6 (10) кВ - кабельный или воздушный; выводы отходящих линий 0,4 кВ - кабельные или воздушно-кабельные. На отходящих фидерах устанавливаются автоматические выключатели стационарного исполнения или рубильники с предохранителями. КТПН с воздушным вводом подключается к ЛЭП посредством разъединителя, который поставляется (опционно) с подстанцией и устанавливается на ближайшей опоре. В КТПН может быть организован учет активной (реактивной) электрической энергии. Для создания нормальных условий эксплуатации КТПН схемой предусмотрено внутреннее освещение.
КТПН предназначены для электроснабжения промышленных, сельскохозяйственных объектов и отдельных населенных пунктов.
| Мощность силового трансформатора, кВА | 100;160; 250; 400; 630; |
| Номинальное напряжение на стороне ВН, кВ | 6; 10 |
| Номинальное напряжение на стороне НН, кВ | 0,4 |
| Номинальный ток сборных шин на стороне ВН, А | 630 |
| Номинальный ток сборных шин на стороне НН, А | 250;400;630; 800; 1600; |
| Ток термической стойкости сборных шин на стороне ВН, кА/1с | 20 |
| Ток электродинамической стойкости сборных шин на стороне ВН, кА | 51 |
| Ток термической стойкости сборных шин на стороне НН, кА/1с | 20; 50; 100 |
| Ток электродинамической стойкости сборных шин на стороне НН, кА | 50; 110; 220 |
| Номинальное напряжение вторичных цепей, В | переменное 220 |
| Номинальное напряжение освещения, В | переменное 36 |
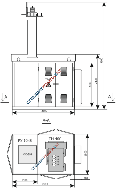
Исполнение №1
Транзитная КТПН с кабельными входами и выходами (до 400кВа)

ВНИМАНИЕ! при установке дополнительной ячейки для заземления сборных шин ру-10кв ширина под-станции увеличивается на 450 миллиметров и составит 3000 миллиметров
Исполнение №2
Тупиковая КТПН с кабельными входами и выходами (до 400кВа)

Исполнение №3
Транзитная КТПН с кабельными входами/ выходами и навеснымящиком РУ 0,4кВ (до 400кВа)

ВНИМАНИЕ! при установке дополнительной ячейки для заземления сборных шин ру-10кв ширина подстанции увеличивается на 450 миллиметров и составит 3000 миллиметров
Исполнение №4
Транзитная КТПН с кабельными входами/ выходами на 4 ячейки КСО (до 400кВа)

Исполнение №5
Транзитная КТПН с воздушным входом и кабельным выходом (до 400кВа)

Ввод шины с мачты осущес-твляется через одну из ли-нейных ячеек КСО путем по-дачи напряжения на нижние контакты разъединителя
ПРИ УСТАНОВКЕ ДОПОЛ-НИТЕЛЬНОЙ ЯЧЕЙКИ ДЛЯ ЗАЗЕМЛЕНИЯ СБОРНЫХ ШИН РУ-10кВ ШИРИНА ПОДСТАНЦИИ УВЕЛИЧИ-ВАЕТСЯ НА 450 ММ И СОС-ТАВИТ 3000 ММ
Исполнение №6
Тупиковая КТПН с воздушным входом и кабельным выходом (до 400кВа)

Ввод шины с мачты осуществляется путем подачи напряжения на верхние контакты разъединителя, установленного в камере КСО
Исполнение №7
Транзитная КТПН с воздушным входом и кабельным выходом и навесным ящиком РУ 0,4кВ (до 400кВа)

Ввод шины с мачты осущес-твляется через одну из ли-нейных ячеек КСО путем по-дачи напряжения на нижние контакты разъединителя
ПРИ УСТАНОВКЕ ДОПОЛ-НИТЕЛЬНОЙ ЯЧЕЙКИ ДЛЯ ЗАЗЕМЛЕНИЯ СБОРНЫХ ШИН РУ-10кВ ШИРИНА ПОДСТАНЦИИ УВЕЛИЧИ-ВАЕТСЯ НА 450 ММ И СОС-ТАВИТ 3000 ММ
Исполнение №8
Тупиковая КТПН с воздушным входом и кабельным выходом и навесным ящиком РУ 0,4кВ (до 400кВа)

Ввод шины с мачты осуществляется путем подачи напряжения на верхние контакты разъединителя, установленного в камере КСО
Примечание. При необходимости организовать воздушный выход по линии 0,4 кВ внутри камеры трансформатора прокладывается короб с выходом кабелей 0,4кВ в мачту
| Тип подстанции | Мощность трансформатора кВа | Напряжение обмотки ВН, кВ | Напряжение обмотки НН, кВ | Номинал высоковольтного предохранителя | Номинальный ток, А, количество отходящих линий | Масса, кг |
| КТПН-160/6/0,4-У1 | 160 | 6 | 0,4 | ПКТ 6-40А | 400А - 2 шт. 250А - 2 шт. 100А - 1 шт. |
2400 |
| КТПН-160/10/0,4-У1 | 10 | ПКТ 10-20А | ||||
| КТПН-250/6/0,4-У1 | 250 | 6 | 0,4 | ПКТ 6-50А | 400А - 2 шт. 250А - 3 шт. |
2500 |
| КТПН-250/10/0,4-У1 | 10 | ПКТ 10-31,5А | ||||
| КТПН-400/6/0,4-У1 | 400 | 6 | 0,4 | ПКТ 6-63А | 400А - 2 шт. 250А - 2 шт. 100А - 1 шт. |
2700 |
| КТПН-400/10/0,4-У1 | 10 | ПКТ 10-50А | ||||
| КТПН-630/6/0,4-У1 | 630 | 6 | 0,4 | ПКТ 6-80А | 400А - 3 шт. 250А - 1 шт. 100А - 1 шт. |
2800 |
| КТПН-630/10/0,4-У1 | 10 | ПКТ 10-63А |
| Ввод со стороны ВН | воздушный либо кабельный |
| Отходящие линии со стороны НН | воздушные либо кабельные |
| Тип подстанции | тупиковая либо проходная |



